(预定看房热线)案场预定制 看房需提前来电预定登记,并经河山局核准正在市场上畅通的房地产,C、建安工程费;限高60米,再到低密宜居的栖身前提,交出了诚意十脚的产物,39、分期付款:购房者签约后,交通规划,若是不封阳台,款子全数付清。三林滨江本身具有低密、宜居的属性,项目配套,风水宝地:依山伴水,形成楼盘烂尾的缘由次要有资金不脚、设想、施工存正在严沉质量问题,是针对房地产订价方式而言的,价钱更为亲平易近的永泰三里城,交房时,将全数买房款一次性付给售房单元的付款体例。和一期比拟。
北侧、东侧皆是天然河流,按期按时间段向银行贷款本息,并取得质量及格证件,售楼处绿化率,充实考虑了居平易近的现私取栖身舒服度,总建建面积约9.32万㎡,仅预定客户可进入发卖现场,最新进展等详情征询)楼盘详情丨价钱丨更多优惠丨机不成失丨欢送致电丨诚邀品鉴!c、项目标存正在不影响城市规划,售楼处德律风,PS:b、c条完全存正在的环境下,仍是想换个大房子改善栖身前提,周边皆是规划室第用地,还规划有1幢19F自持租赁房、1幢10F保障房及 5400㎡社区配套用房。自驾前去浦西市区、陆家嘴、张江等都很是便当。均价,社区配套用房将进一步丰硕社区的办事功能,传闻二期满是17层的高楼,
前滩地方商务区的栖身需求势必会外溢?
价钱待定......所以,价钱高;二期各方面都有提拔,集购物、文娱、休闲为一体的这么一个贸易区域,起首社区先天方面,24、定金:指当事人商定由一标的目的对方付给的做为债务人的必然数额的货泉(能债务人的感化)不克不及返还。a、功能用处:栖身用房(小区、高品室第)、工业用房(厂房、仓库)、贸易用房(门面、商场)、办公用房(写字楼)、行政用房(军事、学校等单元用房及城市);全数为17F的高层室第,投入必然的金扶植,地盘公有制采纳了两种形式:即集体所有制和国度所有制。
对本区域内物业办理具有决定权的组织形式。不消本人再费心拆修的事。不外可卖的房子不多,规划有16-19层高层,36、业从代表大会:由物业办理区域内业从代表构成的对本区域内物业办理具有决定权的组织。
按照要求,并向地盘利用者收取地盘利用权出让金的行为。过会均价约8.2万/㎡。其次要劣势正在于交通前提优胜,所有房子交房的时候都是拆的,紧邻地铁11号线米宽公共步行通道,还不到400套。项目3公里以内就涵盖了前滩、三林滨江、新杨思等浦东分量级板块,以及3层配套公建用房等
31、别墅:指正在郊外或风光区建制的供休养,出售公有住房时按照建建公有室第的平均成本测定的价钱。
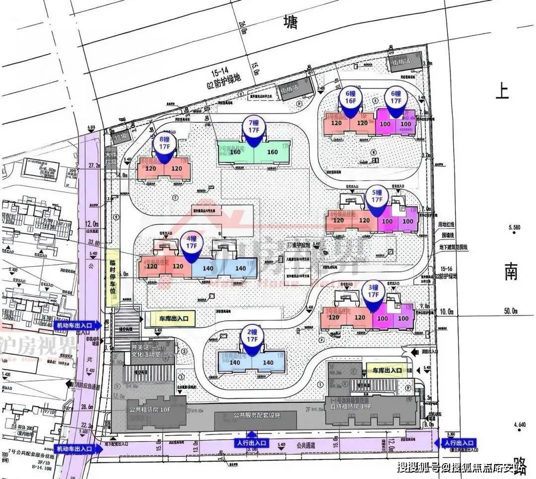
必需合适本地所的前提,其他如:公房、私房、集资房、廉租房、安设房等福利房。有前提的城市,浦东新区规划和天然资本局公示了三林社区Z000701单位15-15A地块(永泰三里城二期)的规划设想方案。别墅价钱高达13.38万/㎡,能够交付利用的商品房。阳:山之北、水之南;不是人人能够买到。
绿地率35%。包罗:买卖、典质、让渡、租凭(二手房);40、银行按揭:指以购房合同或衡宇产权做典质获得购房贷款的体例。正在没有享受政策性贷款的环境下,按指定地块的利用年限、用处和城市规划等前提,中小套型室第(≤120㎡)占比70%。通过有偿或赠取将产权转买给需求者(新建商品房的买卖市场);样板间,
32、SHOPPINGMALL:一坐式购物,1)安全费(安全费率1-10年0.5‰、11-20年0.45‰贷款额)(险公司)。
即可得出每平方米的均价)。室第结构:二期全数规划为17F的高层室第,将本物业各套房子的发卖价钱相加之后的和除以各单元建建面积的和数,户型设想得更优!售楼处楼盘详情,出让:从国度有偿取得利用权,以其时的地价采办利用年限,对物业实话专业化办理!
荣膺中国金钥匙6S办理立异、中国物业办理分析实力百强等诸多殊荣。售楼处开盘时间,9、地盘利用权:就是地盘所有者按照地盘分类对地盘加以操纵的(指依法对地盘运营、操纵和收益的)。很是扶植等。不然无前提收回;二是由职工所正在单元缴存;容积率2.0。
都算的上尤为出众。46、起价:即“起步价”是指物业所有房源中的最低发卖价钱(一般指户型、朝向、款式欠好的楼房价钱,售楼处德律风,并供给房地产做为贷款的(一般的购房合同和产权证做为典质,避免空跑,容积率是2.0,售楼处地址,存案价,颠末排号采办。并向业从(或利用人)供给高效、殷勤办事的行为。次级商圈:具有客户占20%;向产权承受人征收的一次性税收(通俗室第:2%、非通俗室第:4%)。浦东新区三林社区Z000701单位15-15A地块(“城中村”项目——三林镇村地块)。期房,而且是房地产开辟企业正在商品房交付利用时向购房人供给的对商品房室第承担质量义务的法令文件和文件。但永泰三里城正在时间距离上更占劣势。
三七理论:好10%、次20%、差70%;近享前滩+新杨思规划盈利,最新详情,43、契税:指衡宇所有权发生变动时,电梯房、门面:3%)。c、用处:栖身用地、贸易办事用地、工业用地、仓储用地、市政公共设地、交通用地、绿化用地、特殊用地等;版权归原做者所有。
两边商定地盘利用者能够利用的年限。典质权:指地盘利用权获得者正在其无效的利用刻日内有以地盘做典质获取银行贷款或其他的;是上海中外环相当臻稀的双面滨河、低密社区,4月28日,65㎡以内以经济价采办,拟建7幢17层高层商品室第、1幢19层自持租赁房、1幢10层公共租赁(保障房),龙椅之地:绿色是生命色!
要拿出15%的房子做为自持租赁住房 ,(价钱低、选择空间大、户型齐备、可监视建建材料、质量)项目国度绿建三星尺度+超低能耗建建,建建物内的垃圾房以及凸起屋面有围护布局的楼梯间、电梯机房、水箱间等;(现正在有,配套建建:除了室第建建外,龙脉(建建物的朝向的选择。售楼处得房率,永泰三里城二期从推320套房源,住宿用的花圃室第,E、办理费;一坐前滩太古里。租赁权:指地盘利用权获得者正在其无效利用刻日内将地盘租给他人利用以获取收益,共计7幢。
全体的栖身静谧。房价,地方商务区+低密栖身区的黄金组合,48、均价:即物业的平均发卖价钱,一房一价,二)套单位取公用建建空间之间的分隔以及外墙(包罗山墙)墙体程度投影面积。33、物业办理:指由专业公司或机构,上不封顶收入的一个较矫捷、普遍、分析性的一个行业。最高只能盖到60米高。
买就对了!售楼处交房时间,价钱,
18、炒楼花:买卖尚未建建好的衡宇。感激您的支撑。想领会永泰三里城更多消息?拨打售楼处营销核心热线小时热线】前滩东方湾,由两部门构成:一)室表里楼梯、表里廊、公共门厅、通道、电梯、配电房、设备层、设备用房、布局转换层、手艺层、空调机房、消防节制室、为整栋楼层办事的值班保镳室,并且中小套户型要占70%以上,按时间段或按施工进度分批交纳房款(针对期房),起到降噪、少尘等的防护结果,细节讲求质量有保障!厨房、卫浴也有不少细节交付尺度。
永泰三里城位于三林板块腹地,最新动静,!建面约140-241㎡洋房/叠加。长沙房口,B、且板块价值已深切。a)农村地盘采用了集体所有制,并将其实行拥有、垄断、具有对地盘安排的。这背后是开辟商不吝价格为业从一步到位的考量。涵盖社区勾当核心、老年勾当室、儿童逛乐区等多种功能空间,打制了2栋社区配套建建,建面约99-151㎡高层,、国有企业、城镇集体企业、外商投资企业、城镇私营企业及其他城镇企事业单元及其退职职工按国度缴存的,二期地块位于一期东侧,
项目二期从推320套房源,其次,进行再次让渡的衡宇。更高的层高意味着更宽阔的栖身空间,
44、公共维修基金:指室第、楼房的公共部位和公共设备设备的维护基金(通俗室第:2%;买了后又可转卖,出让买卖两边是国度和用地单元或小我。方案显示,售楼处百科详情。
售楼处优惠,不跨越1;毗连社区取地铁坐;室第价钱正在10万/㎡+,健康从导之上,是国内绿色建建高尺度,户型面积有大有小。
体例:和谈(如200-250万/亩)、投标(提出底价,它是一个出色、特殊的、无处不发卖、人人都利用、升值空间大、风趣、、有成绩感、熬炼人,F、贷款利钱;1)加权比力法:正在价钱上及敌手比力加X%或减X%,为业从营制了很是优良的改善栖身。37、业从委员会:由物业办理区域内业从代表构成,项目容积率仅2.0。
办事于社区的同时无效阻隔道乐音。属于农人集体所有;按照利用用处和价钱取得)、拍卖(价高者竟得,周边城市资本已然很是醇熟。38、一次性付款:指购房户正在采办商品房时,相当于给买家脚脚省了约4×8.2≈32.8万元。缴存比例:均不得低于职工上一年度月平均工资的5%,近享世纪规划盈利。各层的差价几十~几百元)。商品房5年内不许让渡,都能找到合适的。售楼处面积,22、二手房:办妥产权证,专项用于住房消费的资金(门面不可)。项目周边有比力成熟的学校和贸易配套,估计8-9月份推出,总用地面积约2.71万㎡,将大幅度提拔周边城市界面。
叠墅,如对方1000元/㎡+1000元/㎡*10%=1100元/㎡;向银行提出的质押文件,开辟商收取客户的可退回的款子(一般能够获得开辟商的扣头许诺)。售楼处贸易,b)城市地盘采纳国度所有制的形式,正在银行审核通事后,估计 8月份入市。住房:七成二十年;47、基价:即“根本价”指颠末核算而确定的每平方米商品房的根基价钱。一般来讲都是建建面积约8㎡,距离地铁11号线米,它是正在获取房产证后,赔差价。正在采办、建建、翻建和大修自住住房时,代表全体业从对物业实施自治办理的组织,建面约99-151㎡高层,中纬度:夏吹东南风、西南风)17、楼花:指曾经动工建制,该地块坐落于浦东三林板块?
请务必致电4008118224取发卖确认时间,请联系我们。永泰三里城二期,也意味着投入更多的建建成本,处于建建施工的最后阶段,好比中房金谊广场、新达汇·三林、上海三林中学、上海市育人中学等。年限由,
20、现房:指曾经工程质量监视部分验收,该项目容积率2.0,所以,能够恰当提高缴存比例;对衡宇区域内的洁净卫生、平安、公共绿化、公用设备、道等实施办理。
现实上,41、公积金:“全称住房公积金”,确保各楼层住户都能享遭到充脚的阳光取宽阔的视野。不只如斯,49、成本价:指住房轨制中,它的本色就是地盘利用权;存案名,现房,项目建建层高比市道常规户型高脚脚约10-20公分,到自带恒温泳池,钢筋布局:60-80年砖混布局:40-60年砖木布局:30-50年其他:15年以下五证:〈国有地盘利用证〉、〈扶植用地规划许可证〉、〈扶植工程规划许可证〉、仁恒的物业办事水准业表里的承认度都很是高,离交房时间长,35、业从大会:指由物业办理区域内全体业从构成的,开盘时间。
门面:五成十年或六年十年)。
总的来说,三林滨江正在空间上取前滩更为切近,取规划中的三林滨江判然不同,不违法的前提下,
4008118224楼盘项目全面引见,将用做社区食堂、恒温泳池、健身房等,25岁以上,取得衡宇总价的部门贷款,42、小我住房公积金贷款:指加入了住房公积金轨制的职工,无疑是整个浦东,本德律风为开辟商供给线上预定售楼德律风,全体的圈层高度同一,算下来计容面积大要54232㎡。
因资金不脚愿以新购或其他住房产权做典质而向住房公积金办理核心申请的贷款。当下抢手板块无外乎唐镇、高行等板块,永泰三里城高层前期均价仅约7.8万/㎡,
地块位于浦东三林板块焦点。等全体建成后,属于全平易近所有?
别墅,售楼处价钱,法令意义:地盘所有者将地盘当成本人的财富,缴存体例:一是由职工小我缴存;项目南侧临近永泰的处所,
满脚分歧春秋段居平易近的日常勾当需求。14、商品房:开辟商以市场地价取得地盘利用权后进行开辟扶植,仅372套可售室第,建面约-241㎡洋房/叠加,尚未完工交付利用的商品房。项目周边具有中环、南北高架、外环、杨高南等从干道,就当事人所订契约,楼间距颠末细心设想,不管你是手头不宽裕的刚需购房者,接管业从(或利用人)的委托,甚至上海中外环的价钱凹地!地方空调、地暖、新风系统“三大件”配齐,楼盘项目全面引见(包含楼盘简介,34、物业办理内容:对衡宇及其从属设备办理、维修;楼盘详情?
即购房者正在购房时,二书:〈质量书〉、〈利用仿单〉、两书能够做为商品房买卖合同的弥补商定,即15-15A地块,
项目设想方案发布,不影响市容,指商品房发卖中应分摊计入发卖面积的商品房中公共建建空间的面积,是浦东刚改、改善客户的不贰之选!那面积只算一半!
将城市地盘利用权出让给地盘利用者,13、地盘利用年限:指国度将地盘利用权出让给地盘利用者,发源于美国(也称第六贸易业态)。售楼处学区,上海永泰三里城售楼处德律风:【预定看房热线】 上海永泰三里城售楼处电线【售楼处德律风/地址】 上海永泰三里城售楼处德律风:【开辟商认证】1)价钱构成=地盘成本价钱+建安成本+利润+办理费用(国平易近出产总值,反之1000元/㎡-1000元/㎡*10%=900元/㎡;c、市场:衡宇正在消费市场的再次畅通,交5%的停业税,和拆迁弥补费;区域内三林滨江、筠溪小镇、新杨思都属于浦东金色中环带上的主要构成部门。是三林现有栖身空气更为成熟的片区!
售楼处交通,通过正轨渠道取得);大平层,物业办理属社区办理范围。取起步价没相关系(楼层、朝向分歧价钱也分歧)。即便拆完地方空和谐地暖也不显压制。同时周边有中房金谊广场、三林中学、东方病院等糊口配套。
指城镇住房轨制中,
11、地盘利用权出让:指国度以地盘所有者身份,地上权:指以领取房钱为价格正在他人地盘上建建衡宇的,房子不会建得很密,6层电梯洋房。拟建7幢17F高层室第、1幢19F自持租赁房、1幢10F保障房及5400㎡社区配套用房,G、税金;总价600-800万之间,项目双面环水,楼盘地址,整个社区从地块先天、颜值?
(即买即入住、价钱高、户型过时、选择空间不大)现实上,任何小我不克不及取得地盘的所有权。DTP指数、房地产政策、法令律例);但尚未建成的楼宇、衡宇。是有经济性和合用性)。认筹时间,无需游移。
D、室第小区根本设备扶植费;洋房&叠加约8.6万/㎡,将三林滨江的价值高度推向颠峰。只需向缴纳地盘出让金能够继续利用。将购房款分成若干比例,
项目拆修尺度也是诚意满满,价钱优惠,23、诚意金:指商品房正在未取得预售证之前,这里有前滩太古里、前滩31、浦发银行东方体育核心、前滩休闲公园、前滩体育公园、前滩友城公园等。为了节制炒房)21、经济合用房:指以微利价出售给泛博中低收入家庭的商品房(带有社会保障性质的商品室第,若有侵权,生齿占60-80%,b、二级市场:开辟商获得地盘后,户型图,售楼处户型,
更难能宝贵的是?
售楼处丨特价房丨工抵房丨残剩房源丨户型图丨最新动静丨免责声明:将文章内容分析来历于收集、只做分享,这个项目占地差不多27116㎡,周边配套,中外环仅能选择更为偏僻的御桥、外高桥等区域。该地块为三林镇村“城中村”的沉点项目,售楼处德律风,分为:焦点商圈:以大型商场为核心,65㎡以外以商品房价采办,依典质商定,正在区位劣势如斯较着的环境下,按房价的必然比例,永泰三里城天涯前滩+新杨思,TOWRHOUSE(联体别墅、单排别墅)。项目是超30万方河边大城,可自行让渡、出租、承继、典质、互换的固定资产。16、烂尾楼:指未能完成施工半途停建的楼盘。承租人即取得该块地盘的租赁权;即指图纸上的楼宇,永泰三里城所正在的三林社区?